近日,中國建研院深圳分公司成功中標龍崗街道黃龍坡九年一貫制學校新建工程(綜合設計)。

項目概況
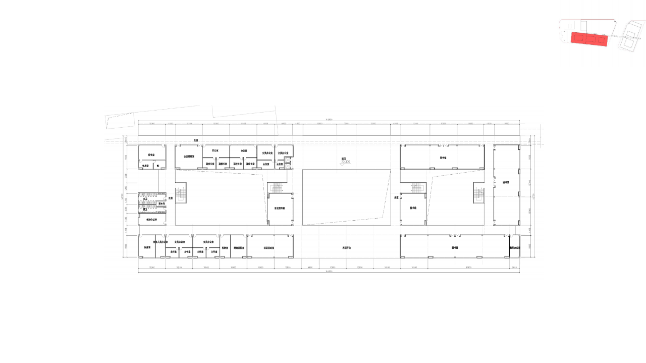
項目位于廣東省深圳市龍崗區龍崗大道以北,龍城廣場地鐵站東北側約400米,屬于龍崗街道的教育配套設施,將建成為九年一貫制72班學校??傆玫孛娣e31160.5平方米,總建筑面積86550.56平方米,其中教學及輔助用房36536平方米,辦公用房1306平方米,生活服務用房8092平方米,選配校舍40616.56平方米。建設內容包括小學及初中教學樓、未來教育中心、藝術樓、操場架空+食堂、教工宿舍樓、地下車庫等建筑物及室外運動場、道路廣場、綠化等室外設施。


設計理念
設計秉承 “讓每一個學生成為學習的主體”的理念,用一條“文化廊”串聯“七個教育院子”, 并與宗祠、公園相連,與周邊環境積極互動。在多個設計維度適應未來教育的“校園模式”“社群概念”“成長空間”“復合共享”“綠色生態”“自然藝術”“文體健康”“鏈接社區”“快速建造”“成本控制”“持續運營”。

教育是多元化的,摒棄被動吸收知識的模式,激發興趣,引導學生去主動學習,發揮他們的創意和特長,才是未來教育的趨勢。






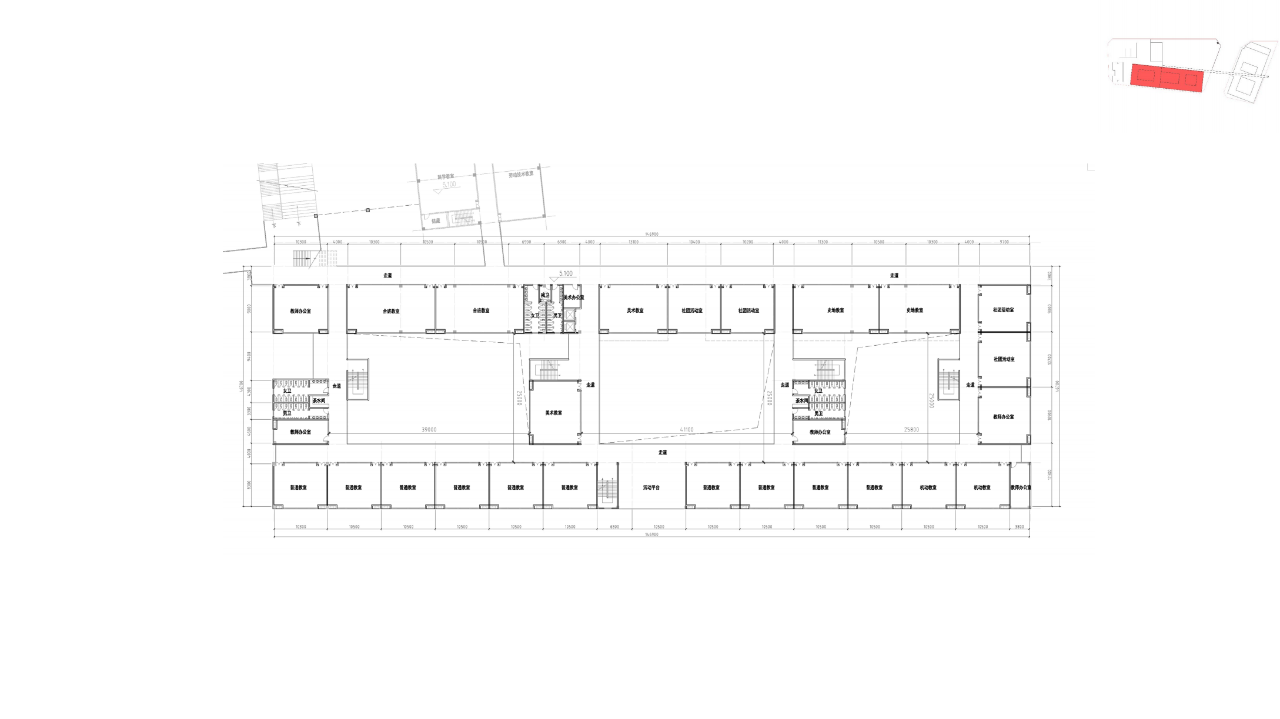
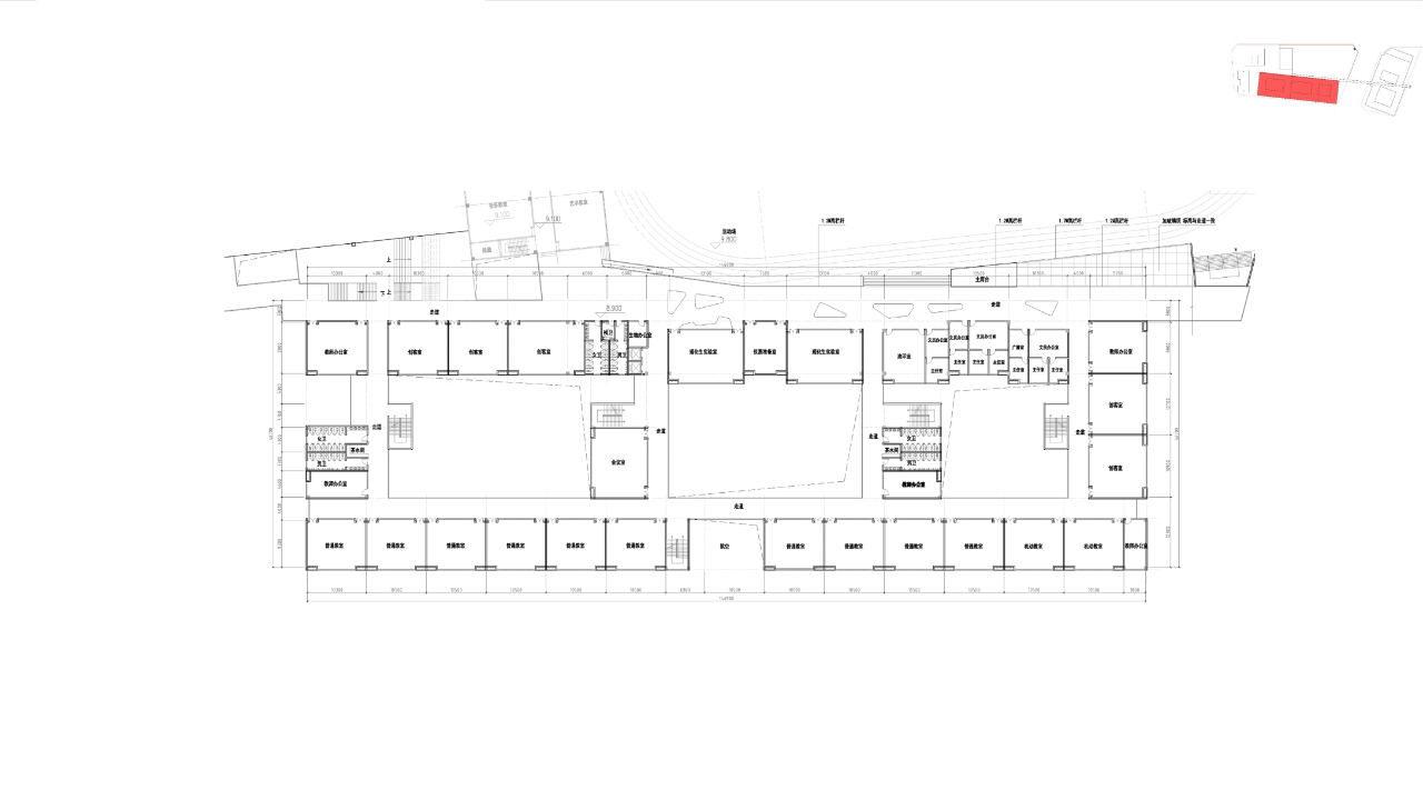
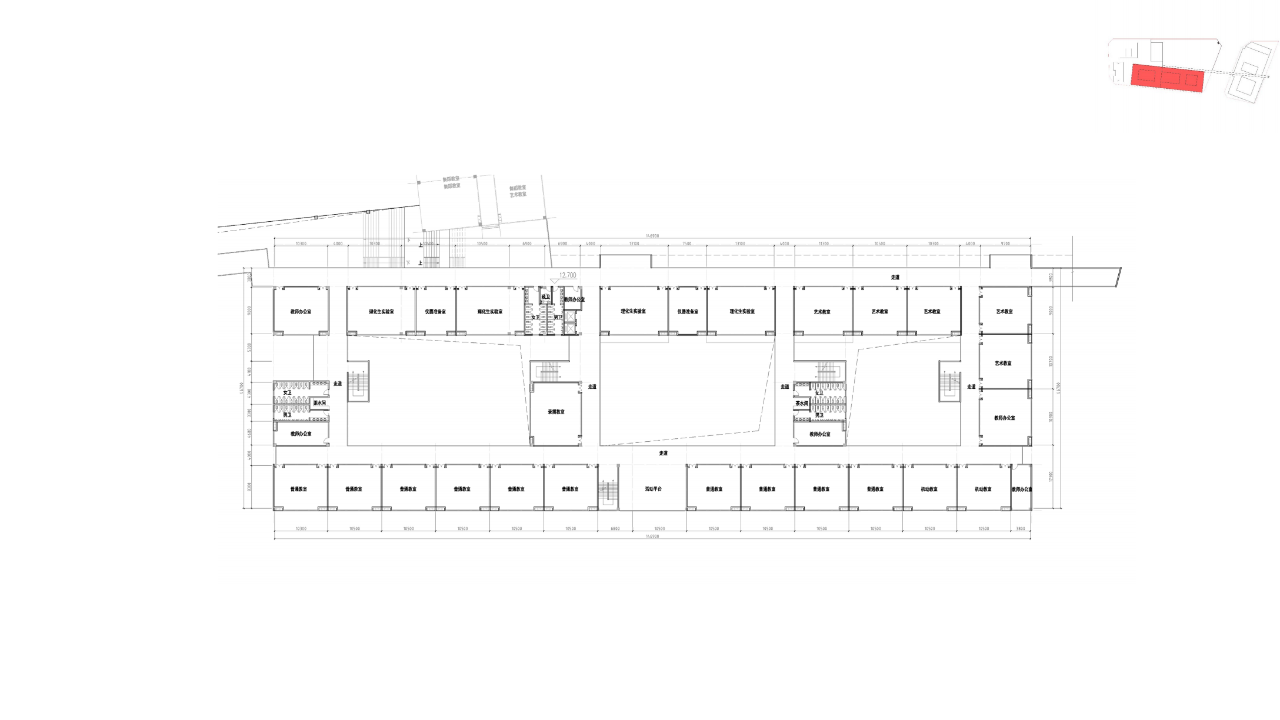
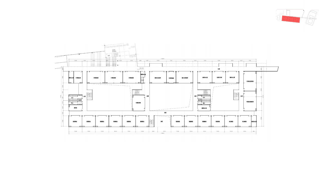
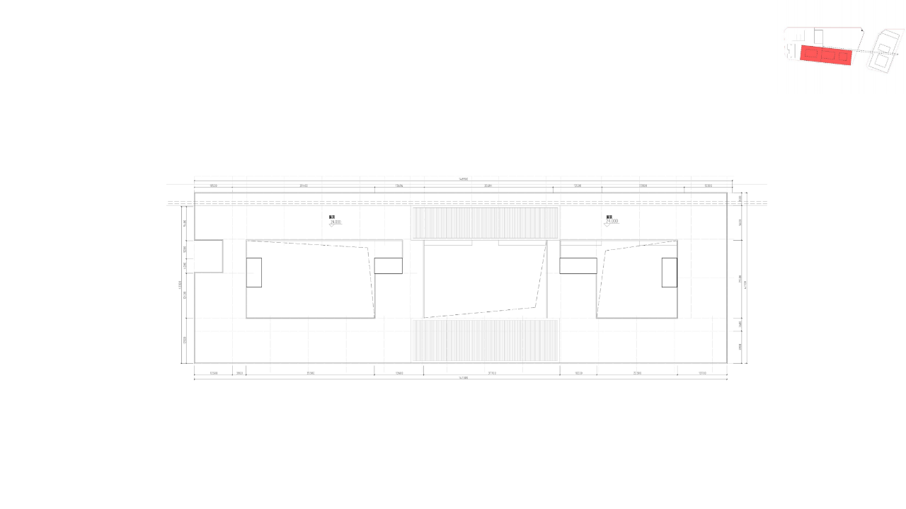
技術圖紙









結語
中國建研院深圳分公司多年來深耕文教領域,始終秉承認真服務、盡職負責的態度,結合項目需求,嚴格把控品質,用專業打造了多個精品項目。未來,中國建研院深圳分公司將結合自身綜合技術優勢,緊抓“綠色低碳”的國家戰略,堅持“以人為本”的教育理念,助力教育事業在新時期高質量發展。(方案設計:深圳市一境建筑設計有限公司)